Asociación de instaladores profesionales de Jaén

Descripción

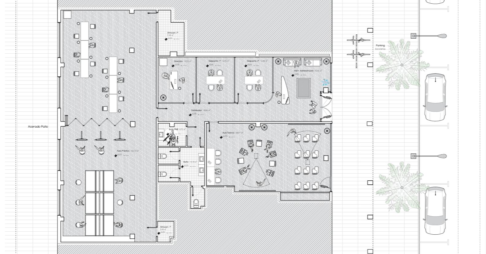
Un espacio pensado para formar, colaborar y avanzar.

La nueva sede de APEI combina transparencia, orden y calidez para crear un entorno donde la técnica y las personas son protagonistas. Aulas, talleres y zonas de encuentro diseñadas para impulsar el oficio, compartir conocimiento y hacer crecer al sector de las instalaciones en Jaén.

Imágenes

Imagen imagen
VER MÁS
Imagen imagen
VER MÁS
Imagen imagen
VER MÁS