Junta de distrito

Descripción

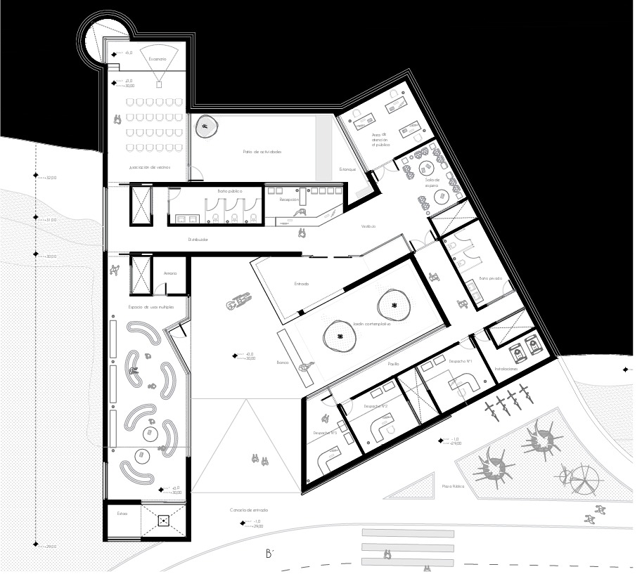
He aquí un lugar en suave pendiente descendente, con la autovía en la zona superior y la calle en la zona inferior. El edificio ya es una roca que desciende y sobresale hacia la ciudad. Toda roca superpuesta con otras de gran tamaño deja espacios y pasos de luz.

Aquí, en el edificio, "lo ceremonial será el vacío". Por la ruptura de esta macla rocosa aparecen dos patios. Por el hecho de despegarnos de lo material y intentar buscar el silencio, todos los ventanales se abrirán hacia estos patios interiores para aportar miradas de relación.

Así, desde el exterior se percibirá paz y calma, ya que lo importante es la palabra, no el gesto. El concepto de esto entra aquí. Por último, una elevación a modo de torre muestra a la ciudad el carácter y la importancia del edificio.

Croquis

Imagen croqui
VER MÁS
Imagen croqui
VER MÁS
Imagen croqui
VER MÁS

Imágenes