Iglesia al borde de un rio

Descripción

El proyecto parte de una reflexión sobre la sociedad contemporánea y su memoria más reciente.

Para comprender nuestro presente basta con mirar hacia la otra orilla del Mediterráneo: las diferencias se diluyen cuando se observan desde la distancia. Cultura, idioma, costumbres… todo se entremezcla hasta revelar un origen compartido. Lo mismo ocurre si miramos hacia el extremo opuesto y nos confrontamos con el espejo de la sociedad occidental.

Andalucía —y en nuestro caso Málaga— es territorio de mestizaje. Nada aquí es puro, y precisamente en esa mezcla reside su riqueza. Diversidad de ideologías, formas de vida y tradiciones conviven generando identidad.

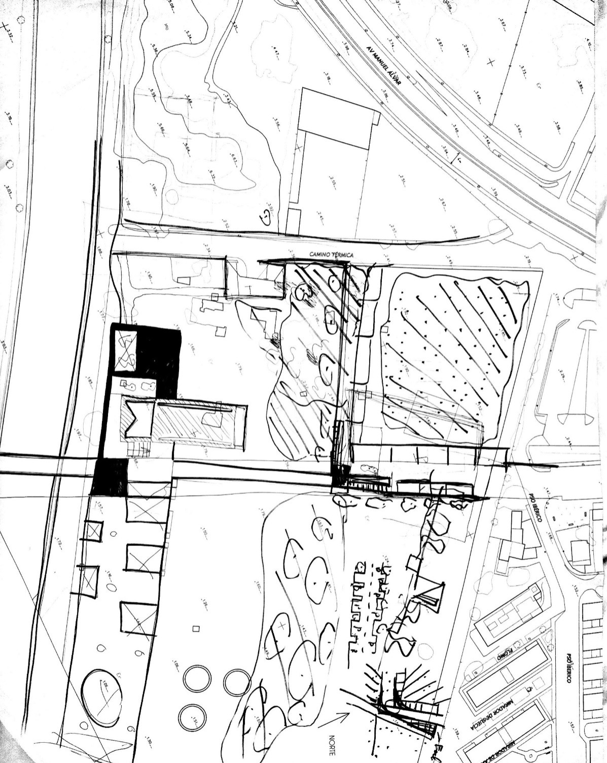
En este contexto se sitúa la antigua Finca del Pato, anteriormente utilizada como punto de facturación de butano. El lugar, con su memoria industrial y su posición estratégica frente al mar y junto a la desembocadura del río Guadalhorce, toma el protagonismo desde el inicio del proceso proyectual.

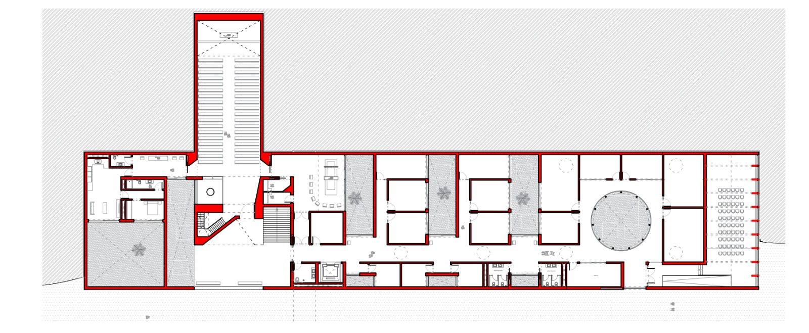
El encargo consiste en un centro parroquial de carácter cristiano, concebido como espacio de encuentro, formación y comunidad. En su núcleo se sitúa la iglesia, elemento articulador que marca el final del paseo marítimo de Málaga y se convierte en referencia urbana.

El complejo no se entiende como un objeto aislado, sino como una pieza territorial.

Se proyecta un parque abierto que actúa como transición entre la ciudad consolidada y el paisaje natural de la desembocadura. Un sistema de senderos arbolados organiza el recorrido a través de dos trayectorias predominantes: una orientada hacia el mar y otra dirigida hacia la iglesia. Ambas se cruzan y dialogan, reforzando la idea de encuentro.

La intervención se completa con la construcción de una nueva línea de escollera que acompaña el cauce del río hasta su encuentro con el Mediterráneo, generando un espigón que prolonga el paseo marítimo y lo conecta con el paseo fluvial posterior al complejo edificado.

Así, el proyecto no solo construye un edificio religioso, sino un nuevo umbral entre agua, ciudad y paisaje. Un lugar donde convergen recorridos, memorias y culturas.

Croquis